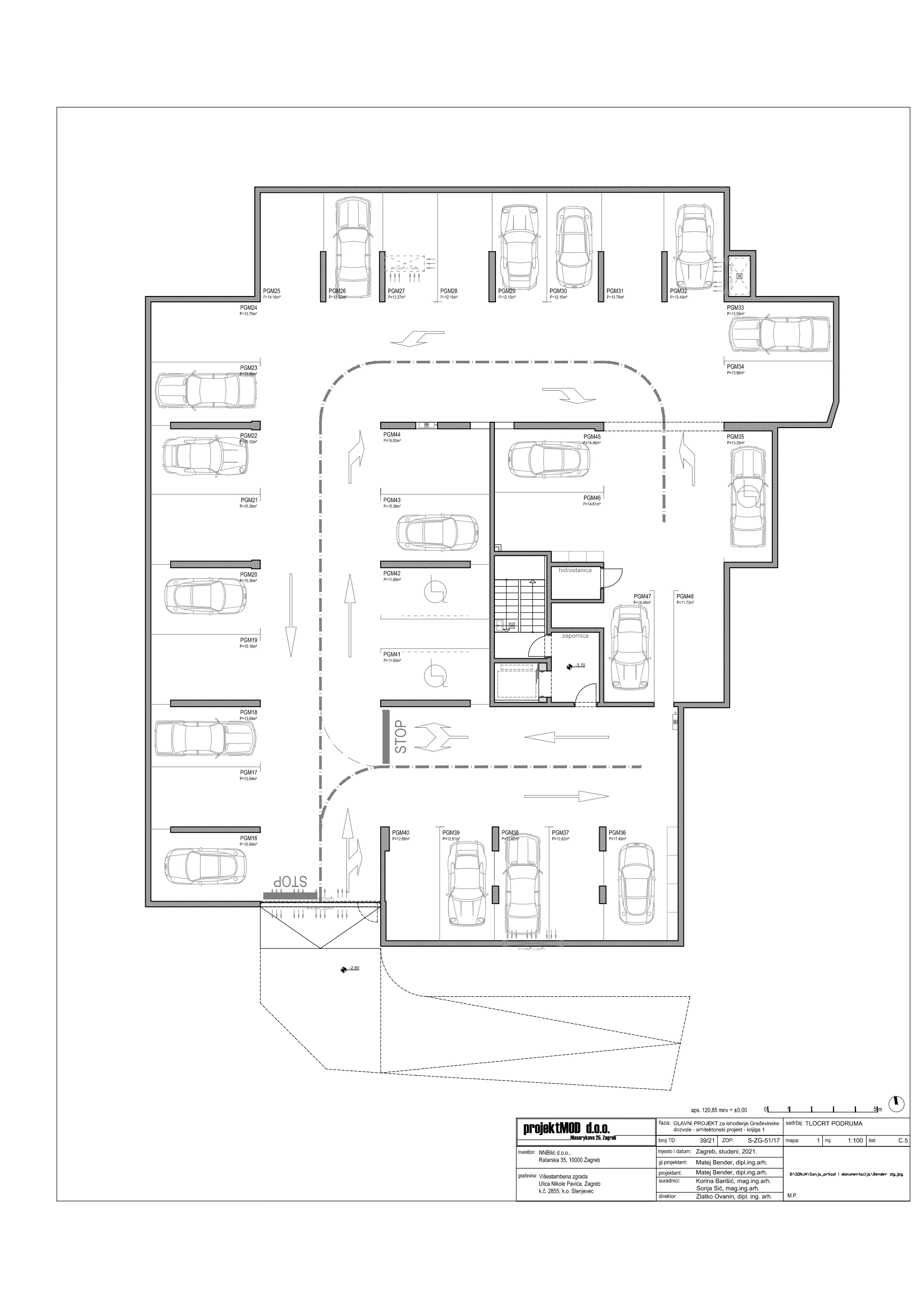
Ukupan broj spremišta, garažnih i parkirnih mjesta na etaži
33
Popis spremišta, garažnih i parkirnih mjesta na etaži
| Oznaka |
Površina |
Status |
|
|
PGM 48
|
11,73 m2 |
Prodan
|
|
|
PGM 47
|
14,49 m2 |
Prodan
|
|
|
PGM 46
|
14,61 m2 |
Prodan
|
|
|
PGM 45
|
14,46 m2 |
Prodan
|
|
|
PGM 44
|
15,00 m2 |
Prodan
|
|
|
PGM 43
|
15,38 m2 |
Prodan
|
|
|
PGM 42
|
11,88 m2 |
Prodan
|
|
|
PGM 41
|
11,93 m2 |
Prodan
|
|
|
PGM 40
|
12,69 m2 |
Prodan
|
|
|
PGM 39
|
12,81 m2 |
Prodan
|
|
|
PGM 38
|
12,62 m2 |
Prodan
|
|
|
PGM 37
|
12,62 m2 |
Prodan
|
|
|
PGM 36
|
17,49 m2 |
Prodan
|
|
|
PGM 35
|
13,20 m2 |
Prodan
|
|
|
PGM 34
|
13,86 m2 |
Prodan
|
|
|
PGM 33
|
13,50 m2 |
Prodan
|
|
|
PGM 32
|
13,40 m2 |
Prodan
|
|
|
PGM 31
|
13,79 m2 |
Prodan
|
|
|
PGM 30
|
12,15 m2 |
Prodan
|
|
|
PGM 29
|
12,15 m2 |
Prodan
|
|
|
PGM 28
|
12,15 m2 |
Prodan
|
|
|
PGM 27
|
12,27 m2 |
Prodan
|
|
|
PGM 26
|
12,92 m2 |
Prodan
|
|
|
PGM 25
|
14,16 m2 |
Prodan
|
|
|
PGM 24
|
13,75 m2 |
Prodan
|
|
|
PGM 23
|
13,86 m2 |
Prodan
|
|
|
PGM 22
|
15,12 m2 |
Prodan
|
|
|
PGM 21
|
15,36 m2 |
Prodan
|
|
|
PGM 20
|
15,36 m2 |
Prodan
|
|
|
PGM 19
|
15,18 m2 |
Prodan
|
|
|
PGM 18
|
13,84 m2 |
Prodan
|
|
|
PGM 17
|
13,84 m2 |
Prodan
|
|
|
PGM 16
|
15,88 m2 |
Prodan
|
|