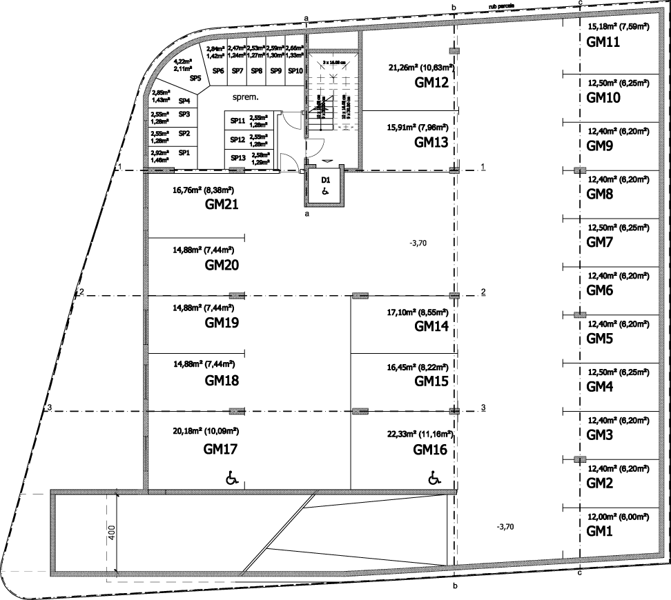
Ukupan broj spremišta, garažnih i parkirnih mjesta na etaži
34
Popis spremišta, garažnih i parkirnih mjesta na etaži
| Oznaka |
Površina |
Status |
|
|
SP13
|
2,58 m2 |
Prodan
|
|
|
SP12
|
2,55 m2 |
Prodan
|
|
|
SP11
|
2,55 m2 |
Prodan
|
|
|
SP10
|
2,66 m2 |
Prodan
|
|
|
SP9
|
2,59 m2 |
Prodan
|
|
|
SP8
|
2,53 m2 |
Prodan
|
|
|
SP7
|
2,47 m2 |
Prodan
|
|
|
SP6
|
2,84 m2 |
Prodan
|
|
|
SP5
|
4,22 m2 |
Prodan
|
|
|
SP4
|
2,85 m2 |
Prodan
|
|
|
SP3
|
2,55 m2 |
Prodan
|
|
|
SP2
|
2,55 m2 |
Prodan
|
|
|
SP1
|
2,92 m2 |
Prodan
|
|
|
GM21
|
16,76 m2 |
Prodan
|
|
|
GM20
|
14,88 m2 |
Prodan
|
|
|
GM19
|
14,88 m2 |
Prodan
|
|
|
GM18
|
14,88 m2 |
Prodan
|
|
|
GM17
|
20,18 m2 |
Prodan
|
|
|
GM16
|
22,33 m2 |
Za prodaju
|
|
|
GM15
|
16,45 m2 |
Prodan
|
|
|
GM14
|
17,10 m2 |
Prodan
|
|
|
GM13
|
15,91 m2 |
Prodan
|
|
|
GM12
|
21,26 m2 |
Prodan
|
|
|
GM11
|
15,18 m2 |
Prodan
|
|
|
GM10
|
12,50 m2 |
Prodan
|
|
|
GM9
|
12,40 m2 |
Prodan
|
|
|
GM8
|
12,40 m2 |
Prodan
|
|
|
GM7
|
12,50 m2 |
Prodan
|
|
|
GM6
|
12,40 m2 |
Prodan
|
|
|
GM5
|
12,40 m2 |
Prodan
|
|
|
GM4
|
12,50 m2 |
Prodan
|
|
|
GM3
|
12,40 m2 |
Prodan
|
|
|
GM2
|
12,40 m2 |
Prodan
|
|
|
GM1
|
12,00 m2 |
Prodan
|
|