Preskoči na sadržaj
TEL:
+385 1 37 55 999
EMAIL:
info@bilic.hr
PRODAJA
Naslovnica
Projekt Stenjevečka
Prvi kat
Stan A6
O projektu Stenjevečka
Četvrti kat
Treći kat
Drugi kat
Prvi kat
Prizemlje
Prizemlje - parkirna mjesta
Podrum - garažna parkirna mjesta
Podrum - spremišta
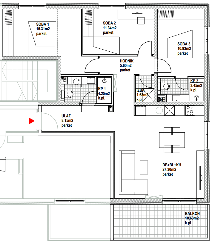
Stan A6
Tlocrt (673 KB)
Informacije o stanu
Etaža:
Prvi kat
Sobnost:
četverosoban
Površina:
93,33 m
2
Status stana:
Prodan
Cijena po m2:
Na upit
Iskaz neto površine stana
stan/prostorija
netto površina (m2)
netto obračunata površina (m2)
ulaz
8,15
8,15
db/bl/kh
27,30
27,30
soba 1
15,31
15,31
soba 2
11,34
11,34
soba 3
10,93
10,93
hodnik
5,60
5,60
izba
1,68
1,68
kupaonica 1
4,25
4,25
kupaonica 2
3,45
3,45
UKUPNO zatvoreni prostor
88,01
88,01
balkon (natkriveni)
10,63
5,32
STAN UKUPNO
98,64
93,33
Pozicija stana na etaži
Kontakti
+385 1 37 55 999
+385 99 261 9650
prodaja@bilic.hr
Pošaljite nam upit
Prvi kat
Sljedeća
vrh stranice
Projekt Gradna Gardens
O projektu Gradna Gardens
2. kat
1. kat
Prizemlje
Projekt Stenjevečka
O projektu Stenjevečka
Četvrti kat
Treći kat
Drugi kat
Prvi kat
Prizemlje
Prizemlje - parkirna mjesta
Podrum - garažna parkirna mjesta
Podrum - spremišta
O nama
Kontakt
Prodaja
Financiranje
Reference
Projekt Pavićeva 2022
O projektu Pavićeva 2022
Peti kat
Četvrti kat
Treći kat
Drugi kat
Prvi kat
Prizemlje
Parkirališna mjesta prizemlje
Garaža -1
Projekt Pavićeva 2018
O projektu Pavićeva 2018
Peti kat
Četvrti kat
Treći kat
Drugi kat
Prvi kat
Visoko prizemlje
Podrum
3d vizualizacije
Lokacija
Oprema stanova
Projekt Malešnica
O projektu Malešnica
Peti kat
Četvrti kat
Treći kat
Drugi kat
Prvi kat
Prizemlje
Prizemlje - parkirna mjesta
Garaža -1
Garaža -2
Lokacija
3d vizualizacije
Oprema stanova
Projekt Trnje
O projektu Trnje
Treći kat
Drugi kat
Prvi kat
Prizemlje
Prizemlje - parkirna mjesta
Podrum
Situacija
Lokacija
3d vizualizacije
Oprema stanova
Zaštita privatnosti
Projekt Gradna Gardens
Projekt Stenjevečka
O nama
Kontakt
Prodaja
Financiranje
Reference
Zaštita privatnosti
Zatvori
Vaš internet preglednik ne podržava kolačiće (eng. cookies).
Molimo omogućite spremanje kolačića (eng. cookie) kako biste mogli koristiti internet stranice u punoj funkcionalnosti.