Preskoči na sadržaj
TEL:
+385 1 37 55 999
EMAIL:
info@bilic.hr
PRODAJA
Naslovnica
Reference
Projekt Pavićeva 2022
Četvrti kat
Stan S 4.39
Projekt Pavićeva 2022
O projektu Pavićeva 2022
Peti kat
Četvrti kat
Treći kat
Drugi kat
Prvi kat
Prizemlje
Parkirališna mjesta prizemlje
Garaža -1
Projekt Pavićeva 2018
O projektu Pavićeva 2018
Peti kat
Četvrti kat
Treći kat
Drugi kat
Prvi kat
Visoko prizemlje
Podrum
3d vizualizacije
Lokacija
Oprema stanova
Projekt Malešnica
O projektu Malešnica
Peti kat
Četvrti kat
Treći kat
Drugi kat
Prvi kat
Prizemlje
Prizemlje - parkirna mjesta
Garaža -1
Garaža -2
Lokacija
3d vizualizacije
Oprema stanova
Projekt Trnje
O projektu Trnje
Treći kat
Drugi kat
Prvi kat
Prizemlje
Prizemlje - parkirna mjesta
Podrum
Situacija
Lokacija
3d vizualizacije
Oprema stanova
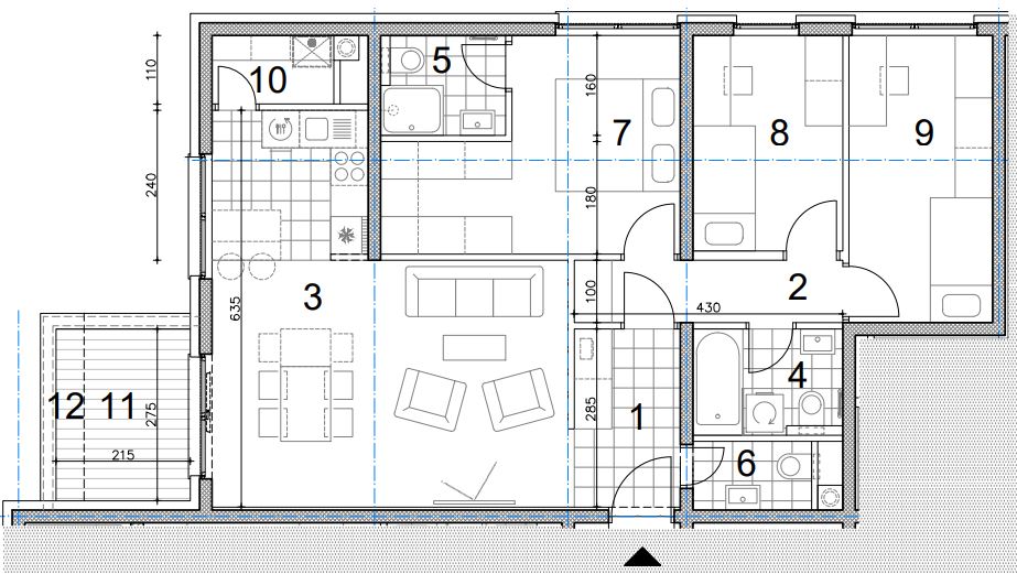
Stan S 4.39
Tlocrt (222 KB)
Informacije o stanu
Etaža:
Četvrti kat
Sobnost:
četverosoban
Površina:
84,04 m
2
Status stana:
Prodan
Cijena po m2:
Na upit
Iskaz neto površine stana
stan/prostorija
netto površina (m2)
ulazni hodnik
4,84
predprostor
4,30
dnevni boravak s kuhinjom
28,64
kupaonica
4,08
kupaonica 2
3,20
wc
2,09
soba
13,23
soba 2
8,28
soba 3
10,58
ostava
2,15
natkriveni balkon
4,68
balkon
1,24
UKUPNO
87,31 (84,04)
Pozicija stana na etaži
Kontakti
+385 1 37 55 999
+385 99 261 9650
prodaja@bilic.hr
Pošaljite nam upit
Prethodna
Četvrti kat
Sljedeća
vrh stranice
Projekt Gradna Gardens
O projektu Gradna Gardens
2. kat
1. kat
Prizemlje
Projekt Stenjevečka
O projektu Stenjevečka
Četvrti kat
Treći kat
Drugi kat
Prvi kat
Prizemlje
Prizemlje - parkirna mjesta
Podrum - garažna parkirna mjesta
Podrum - spremišta
O nama
Kontakt
Prodaja
Financiranje
Reference
Projekt Pavićeva 2022
O projektu Pavićeva 2022
Peti kat
Četvrti kat
Treći kat
Drugi kat
Prvi kat
Prizemlje
Parkirališna mjesta prizemlje
Garaža -1
Projekt Pavićeva 2018
O projektu Pavićeva 2018
Peti kat
Četvrti kat
Treći kat
Drugi kat
Prvi kat
Visoko prizemlje
Podrum
3d vizualizacije
Lokacija
Oprema stanova
Projekt Malešnica
O projektu Malešnica
Peti kat
Četvrti kat
Treći kat
Drugi kat
Prvi kat
Prizemlje
Prizemlje - parkirna mjesta
Garaža -1
Garaža -2
Lokacija
3d vizualizacije
Oprema stanova
Projekt Trnje
O projektu Trnje
Treći kat
Drugi kat
Prvi kat
Prizemlje
Prizemlje - parkirna mjesta
Podrum
Situacija
Lokacija
3d vizualizacije
Oprema stanova
Zaštita privatnosti
Projekt Gradna Gardens
Projekt Stenjevečka
O nama
Kontakt
Prodaja
Financiranje
Reference
Zaštita privatnosti
Zatvori
Vaš internet preglednik ne podržava kolačiće (eng. cookies).
Molimo omogućite spremanje kolačića (eng. cookie) kako biste mogli koristiti internet stranice u punoj funkcionalnosti.